Позвонить нам: 
7 (921) 196-24-46
Наш офис: 
ул. Парковая, д. 24, оф. 304

А-фрейм Скворцовское (Великие Луки)


Что хотел заказчик

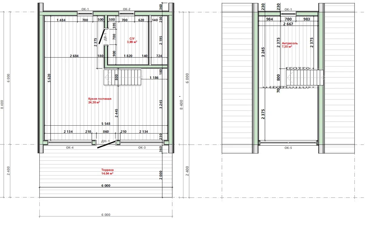
Два двухэтажных дома для сдачи на территории базы отдыха. Нужно было успеть построить до начала летнего сезона и в полной комплектации.

Дата сдачи: май 2025

Image description

Что мы предложили

Два идентичных дома А-фрейм 6х6 м. Утепление произведено базальтовым плитным утеплителем 150 мм. Окна с наружной ламинацией - серый графит. Внутри была выбрана отделка имитацией бруса камерной сушки с покраской. Произведена установка и подключение сантехнического оборудования – душевой кабины, унитаза, раковины, бойлера. Установлены розетки и светильники.

Cookie-файлы
Настройка cookie-файлов
Детальная информация о целях обработки данных и поставщиках, которые мы используем на наших сайтах
Аналитические Cookie-файлы Отключить все
Технические Cookie-файлы
Другие Cookie-файлы
Мы используем файлы Cookie для улучшения работы, персонализации и повышения удобства пользования нашим сайтом. Продолжая посещать сайт, вы соглашаетесь на использование нами файлов Cookie. Подробнее о нашей политике в отношении Cookie.
Понятно Подробнее
Cookies