Позвонить нам: 
7 (921) 196-24-46
Наш офис: 
ул. Парковая, д. 24, оф. 304

Барн в Короцко


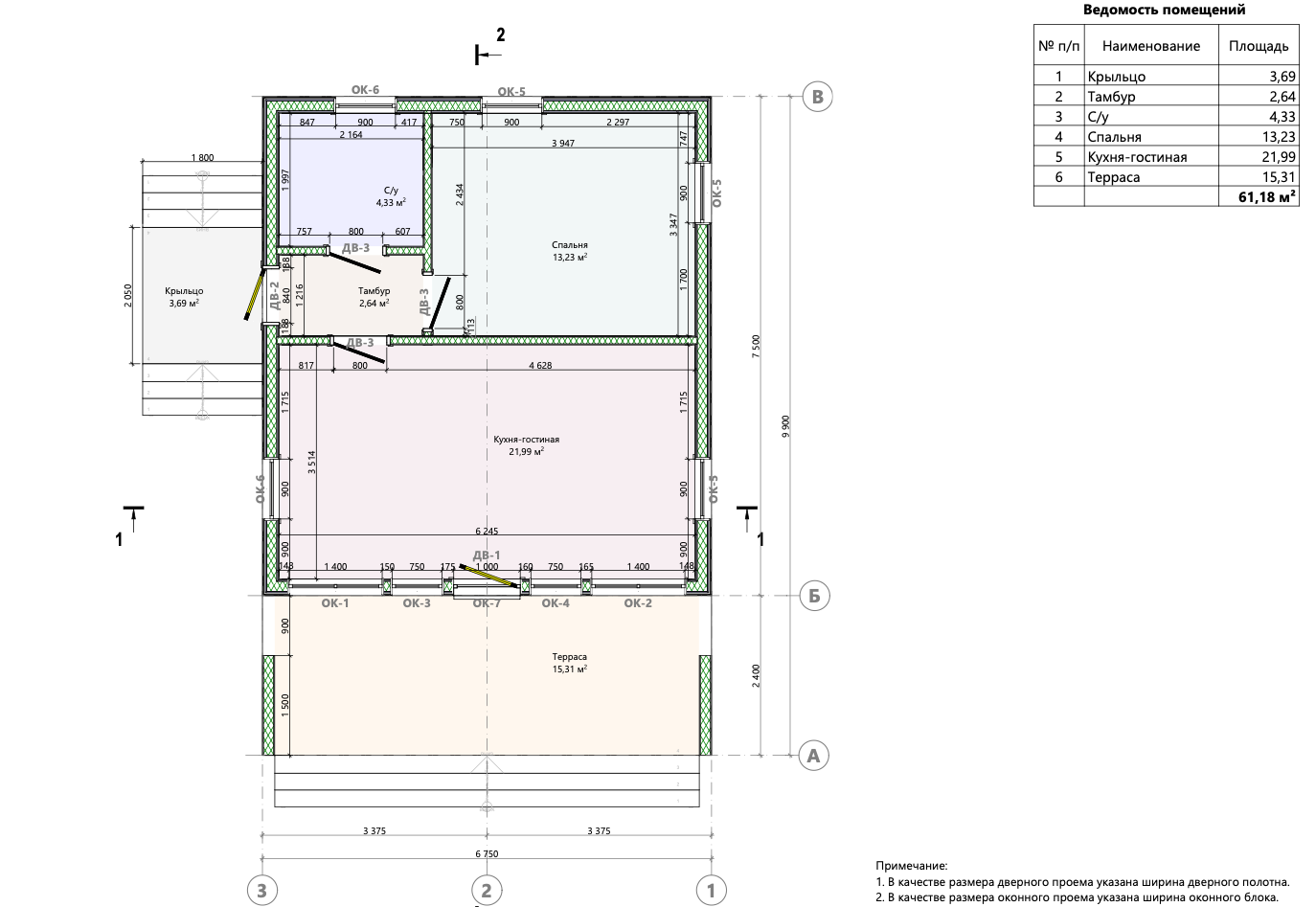
Что хотел заказчик

Дачу для круглогодичного проживания молодой семьи, с возможностью в дальнейшем сдачи в аренду посуточно или долгосрочно. Современный, стильный дом с одной спальней, санузлом, большой кухней гостиной и террасой.

Дата сдачи: ноябрь 2024

Image description

Что мы предложили

Был выбран Дом Барн 65, в котором, отзеркалили стандартную планировку, что бы перенести крыльцо на другую сторону дома, а так же использовали профилированный лист на кровле и на стенах в продолжении ската. Утепление произведено базальтовым плитным утеплителем 150 мм. Внутри была выбрана отделка имитацией бруса камерной сушки и подготовка под кварцвинил.

Cookie-файлы
Настройка cookie-файлов
Детальная информация о целях обработки данных и поставщиках, которые мы используем на наших сайтах
Аналитические Cookie-файлы Отключить все
Технические Cookie-файлы
Другие Cookie-файлы
Мы используем файлы Cookie для улучшения работы, персонализации и повышения удобства пользования нашим сайтом. Продолжая посещать сайт, вы соглашаетесь на использование нами файлов Cookie. Подробнее о нашей политике в отношении Cookie.
Понятно Подробнее
Cookies