Позвонить нам: 
7 (921) 196-24-46
Наш офис: 
ул. Парковая, д. 24, оф. 304

Барн на Валдае


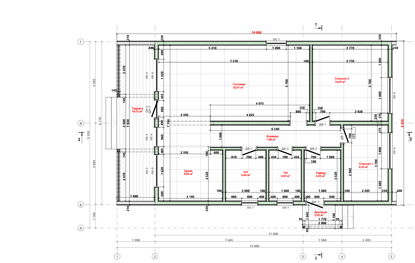
Что хотел заказчик

Дом с одним этажом, большой террасой и большой кухней-гостиной в современном стиле для круглогодичного проживания семьи. Важны были большие панорамные окна и выход из кухни гостиной на террасу.

Дата сдачи: март 2025

Image description

Что мы предложили

Был отредактирован под индивидуальные пожелания проект дома Барн 117. Утепление произведено базальтовым плитным утеплителем 150 мм стены и 200 мм кровля. Окна большие панорамные с наружной ламинацией темный дуб. Внутри была выбрана отделка имитацией бруса камерной сушки, напольное покрытие - кварцвинил.

Cookie-файлы
Настройка cookie-файлов
Детальная информация о целях обработки данных и поставщиках, которые мы используем на наших сайтах
Аналитические Cookie-файлы Отключить все
Технические Cookie-файлы
Другие Cookie-файлы
Мы используем файлы Cookie для улучшения работы, персонализации и повышения удобства пользования нашим сайтом. Продолжая посещать сайт, вы соглашаетесь на использование нами файлов Cookie. Подробнее о нашей политике в отношении Cookie.
Понятно Подробнее
Cookies