Позвонить нам: 
7 (921) 196-24-46
Наш офис: 
ул. Парковая, д. 24, оф. 304

Баня в Короцко


Что хотел заказчик

Функциональная баня на участке с современным домом в одном архитектурном стиле «Барнхаус», которой заказчик планировал пользоваться сам и предоставлять в аренду. Все должно быть максимально износостойко и легко в уборке и использовании.

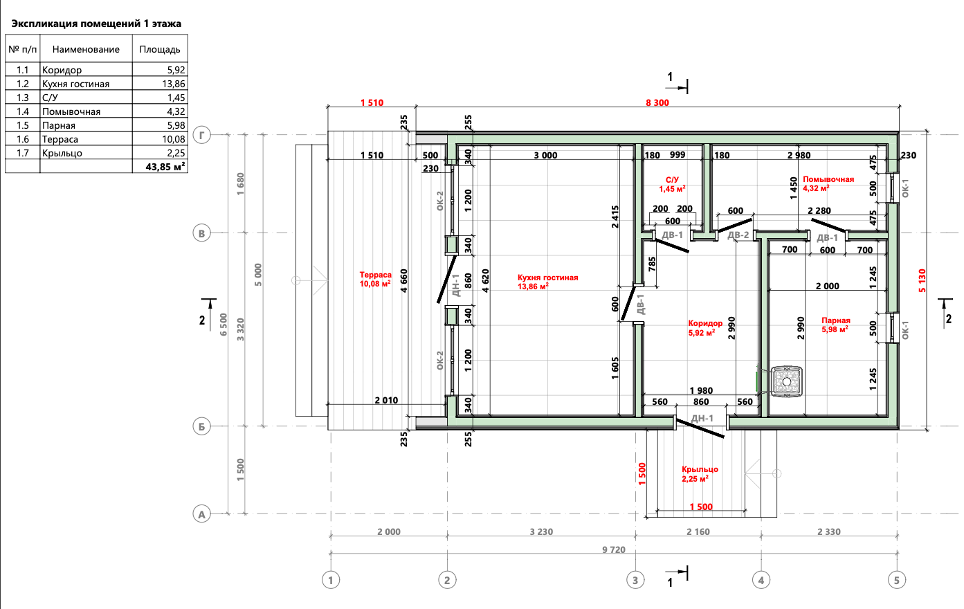
Image description

Что мы предложили

Одноэтажная баня в стиле Барн размером 10х5 м вместе с террасой.
Утепление произведено базальтовым плитным утеплителем 150мм.
Снаружи отделана имитацией бруса, внутри имитация бруса, а также подготовка под плитку на стенах парилки и в душевой. На полу подготовка под кварц винил и плитку. В сауне отделка и полки из осины.

Cookie-файлы
Настройка cookie-файлов
Детальная информация о целях обработки данных и поставщиках, которые мы используем на наших сайтах
Аналитические Cookie-файлы Отключить все
Технические Cookie-файлы
Другие Cookie-файлы
Мы используем файлы Cookie для улучшения работы, персонализации и повышения удобства пользования нашим сайтом. Продолжая посещать сайт, вы соглашаетесь на использование нами файлов Cookie. Подробнее о нашей политике в отношении Cookie.
Понятно Подробнее
Cookies